ru kz
Каталог

Стенд развал-схождения Hunter WA310/20LE-421DT2 мобильный

(0)
Добавить в сравнение

Не устраивает цена или характеристики? Сделаем скидку или подберем аналог! Цена с НДС.

Купить в 1 клик
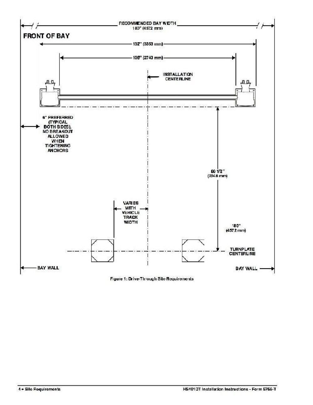
Кабинет мобильный экономичный; ОС Windows; WinAlign Elite, WebSpecs, Photo/Video опция; Монитор LCD 21.5" с креплением; Принтер цветной; Мульти-D, 4 камеры, сквозной проезд, мишени высокого разрешения, адаптеры колесные 10-24,5"; Круги поворотные.
Оптовые цены и дополнительная скидка до 30%! Акция до конца года!

Получить коммерческое предложение! Пришлем полные характеристики, цену с НДС, сроки доставки!

Характеристики Стенд развал-схождения Hunter WA310/20LE-421DT2 мобильный

Кабинет мобильный экономичный; ОС Windows; WinAlign Elite, WebSpecs, Photo/Video опция; Монитор LCD 21.5" с креплением; Принтер цветной; Мульти-D, 4 камеры, сквозной проезд, мишени высокого разрешения, адаптеры колесные 10-24,5"; Круги поворотные. Состав стенда Компонент Описание 1. Датчики Hawkeye HS421DT2E Исполнение из 2 коротких колонн для организации сквозного проезда. Данное исполнение НЕ предназначено для использования совместно с подъемником. Возможна совместная работа с любым типом WA кабинетов. Используют Мульти-D технологию моделирования для получения точных измерений. 4 цифровые видеокамеры высокого разрешения непрерывно контролируют положение колесных мишеней в пространстве и обеспечивают мгновенную обработку получаемых данных и передачу результатов в консоль стенда. 4 мишени высокого разрешения: Обеспечивают больший угол видения по вертикали и горизонтали; Компактные и легкие; Имеют небьющиеся отражатели и ударопрочные корпуса; Не имеют электроники и не требуют калибровки. 4 самоцентрирующихся колесных адаптера с рабочим диапазоном от 10” до 24,5”. Примечание: Для обслуживания колесных дисков диаметром до 28” требуются расширители 20-1792-1. 4 кронштейна хранения колесных адаптеров с мишенями для монтажа на колонну, кабинет или стену (требуется комплект 20-2187-1), ножничный подъемник или стойки 4-х стоечного подъемника. Режимы измерений: «Базовая плоскость» - УУК автомобиля определяются относительно плоскости параллельной путям подъемника/ямы; «Текущая плоскость» - УУК автомобиля определяются относительно плоскости образуемой мишенями. Способы компенсации биений: Прокатывание – быстрая процедура с дополнительной функцией контроля грубых ошибок; Подъем осей – используется при невозможности или затруднении в выполнении прокатывания автомобиля или при регулировке «без колес». Мишени могут быть скомпенсированы в любом порядке. 2. Кабинет WA310E Мобильный экономичный с металлическим верхом (Поставляется в разобранном виде). Внешние громкоговорители - Позволяют использовать функцию SoundGuide (Звуковой Гид) и прослушивать видеоролики. В комплектацию входят: Фиксатор педали тормоза. Фиксатор рулевого колеса. Кронштейн хранения фиксаторов рулевого колеса и тормоза. 3. Монитор LCD 21.5”* Формат изображения 16: 9. На экране отображаются дополнительные функции широкоэкранной версии ПО WinAlign. Комплект крепления к кабинету включен. 4. Принтер* Цветной струйный. 5. Компьютер* с ПО WinAlign Элит В комплектацию входят: Стандартная конфигурация компьютера; Клавиатура с защитной плёнкой (рус./англ. язык); Мышь оптическая; 2 года бесплатных обновлений спецификаций автомобилей. Диски ПО WinAlign Элит установочные; Электронные ключи доступа; Доступ WebSpecs; DVD-Photo/Video опция; Руководство пользователя; Лицензия на использование ОС Microsoft Windows. ПО WinAlign имеет крупнейшую базу данных спецификаций автомобилей c возможностью ее пополнения через Интернет (WebSpecs) и множество запатентованных функций регулировки и повышения производительности: ExpressAlign® – Позволяет выполнять регулировку каждого автомобиля наиболее рационально. Анализирует полученные измерения и предлагает оптимальную последовательность действий с наименьшим количеством требуемых шагов. WinToe® – Гарантирует правильное положение рулевого колеса без повторных регулировок и использования фиксатора руля. Регулировка схождения осуществляется по диаграммам «рулевых тяг»!!! и может выполняться с вывешенной осью. База данных инструментов и регулировочных комплектов – Упрощает подбор необходимых для регулировки каждого автомобиля инструментов и комплектов и экономит требуемое для этого время. Виртуальный вид – Наглядно представляет УУК автомобиля на трехмерной модели в режиме реального времени. Fast caster/SAI – Позволяет получить данные по продольному, поперечному наклонам поворотного шкворня и прилежащему углу за одно измерение. CAMM® (Монитор перемещения рычагов подвески) – Обеспечивает быструю и эффективную регулировку подвески на двойных поперечных рычагах с регулировочными шайбами, двойными эксцентриками или пазами. Пошаговые иллюстрации позволяют сделать все с первого раза. Shim-Select® II – Быстро рассчитывает правильное положение шайбы переменной толщины, в зависимости от типа, для одновременной регулировки развала и схождения задних колес автомобиля. Не нужно обращаться к запутанным диаграммам и таблицам. Регулировка без колес – Ускоряет процесс регулировки в случаях с ограниченным или неудобным доступом к регулировкам с установленным колесом. Примечание: Требуется комплект адаптеров 20-1978-1. ABC® (Автоматический калькулятор втулок) – Определяет размер и положение втулки для одновременной регулировки развала и продольного наклона передних колес пикапов/фургонов без затрат времени на нулевую втулку. SBDA (Аудит кузов/подвеска) – Отображает положение кузова автомобиля относительно шасси для определения крена и необходимости кузовного ремонта. Примечание: Требуются мишени высоты посадки 20-2050-1. Измерение высоты посадки – Поддерживает автоматический ввод данных двумя способами: С помощью мишеней высоты посадки 20-2050-1 (высота отображается в реальном времени); С помощью электронного измерителя, встроенного в пульт ДУ. Измерение симметрии – Обеспечивает мгновенный доступ к данным по симметрии и смещению осей для определения необходимости выполнения кузовного ремонта или выявления факта восстановления после аварии. WinAlign Tuner ™ – Помогает выполнять настройку подвески автомобилей с модифицированной ходовой частью. Примечание: Требуется комплект ПО 20-2004-1. Дополнительно рекомендуются дистанционный индикатор 30-418-1-X-XF и Bump Steer комплект лебедки 20-2011-1. Видеобиблиотека – включает более 300 видеороликов, охватывающих все аспекты развал-схождения. Помогает при общении с клиентами, позволяет разобраться с необычными проблемами, делает механика более компетентным. Режим осмотра «Укажи и щелкни» – Позволяет, используя более 4000 фотографий и иллюстраций, упростить инспекцию подвески и рулевого управления автомобиля. Автоматическое распознавание вывешивания оси AVH (Расширенные данные по управляемости автомобиля) – Помогает обнаружить скрытые проблемы, позволяет получить данные, объясняющие поведение автомобиля на дороге, или спрогнозировать его поведение. Доступны следующие измерения: плечо обката, смещение кастера, угол/смещение центральной линии кузова, диаметр разворота по центрам пятен контакта или внешним кромкам, крен кузова в повороте, свес кузова и др. Примечание: Для большинства измерений требуются мишени высоты посадки 20-2050-1. Распечатка данных – Помогает показать клиенту с помощью подробных цветных распечаток результат проделанной работы, а также объяснить о необходимости замены деталей и проведения ремонта. CodeLink™ – Быстро и легко перенастраивает датчик угла положения рулевого колеса в соответствии с требованиями OEM для корректной работы системы стабилизации курсовой устойчивости. Примечание: Требуется комплект 20-2813-1. TouchRemote™ – Позволяет с помощью Apple iPhone, iPod touch и iPad устройств дистанционно работать с WinAlign, обеспечивая: Отображение значений УУК в реальном времени; Контроль и управление WinAlign; Возможность просмотра регулировочных иллюстраций и изображений. Примечание: Требуется к-т 20-2477-1, WinAlign 11.1 и бесплатное приложение "HunterTouchRemote" с iTunes®. Компьютер должен быть оснащен Wi-Fi адаптером. Ассистент заезда - Позволяет безопасно и легко спозиционировать автомобиль на подъемнике/яме без посторонней помощи. Видеоинформация с веб-камеры выводится на экран монитора. Примечание: Требуется веб-камера. * - внешний вид может отличаться

Купить Стенд развал-схождения Hunter WA310/20LE-421DT2 мобильный у официального дилера

Оформление заказа

Для заказа товара на сайте, добавьте товары в корзину, затем совершите переход к оформлению товара и заполните все необходимые поля при оформлении, указав личные данные.

Телефон 8 (800) 600-62-13 
Почта shop@dsm-russia.com

Телеграм.png    мессенджер макс    Ватсап.png

Более подробную информацию о контактах и реквизитах, смотрите в разделе "Контакты".

Акции и скидки

Спеццена со скидкой до 30%, подробнее в разделе "Акции".

Доставка

Передача товара транспортной компании производится в течении 1-3 рабочих дней.
Полная информация о условиях, сроках и стоимости доставки указана в разделе "Доставка".

Оплата

Мы работаем со всеми типами клиентов, оплата принимается от юридических и физических лиц, а так же от бюджетных организаций.
Подробнее указано в разделе "Оплата".

Гарантия

На все технически сложные товары действует заводская гарантия 1 год!
Все условия по гарантийному обслуживанию в разделе "Гарантия".

* Производитель оставляет за собой право без уведомления дилера менять характеристики и комплектацию товара. Указанная информация не является публичной офертой.

Отзывы на Стенд развал-схождения Hunter WA310/20LE-421DT2 мобильный

Отзывов еще никто не оставлял

Вопросы и ответы о Стенд развал-схождения Hunter WA310/20LE-421DT2 мобильный

Возникли вопросы по товару, комплектации, характеристикам - наши менеджеры ответят на интересующую Вас информацию!

Обратный звонок
Запрос успешно отправлен!
Имя *
Телефон *
Предзаказ
Предзаказ успешно отправлен!
Имя *
Телефон *
Добавить в корзину
Название товара
100 ₽
1 шт.
Перейти в корзину
Заявка

Я ознакомлен и согласен с условиями оферты и политики конфиденциальности.

Заказ в один клик

Я ознакомлен и согласен с условиями оферты и политики конфиденциальности.